0
Sous-compromis
Exclusif

LOCAL COMMERCIAL 107.80m²

Toulouse (31400)
Réf : SAINTSAUVEUR41-42

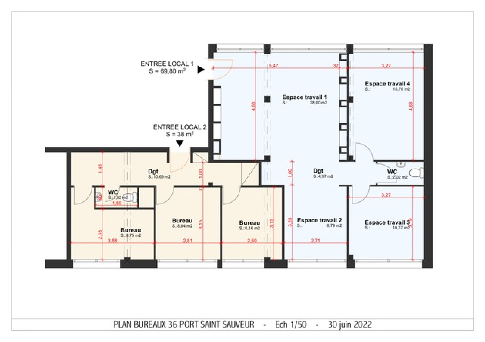
Sur la commune de TOULOUSE, en bordure du Canal du Midi, situé au 1er étage d'un ensemble en copropriété comprenant un bâtiment unique à usage d'habitation, commercial et professionnel situé à TOULOUSE au 36 Port Saint Sauveur.

VENTE DE DEUX LOCAL :

- LOT 41 :au premier étage, un local commercial d'environ 69.80m² portant le numero 4a sur le plan actuellement loué 

- LOT 42 : au premier étage, un local commercial d'environ 38.00 m² portant le numero 4b sur le plan actuellement loué

Pour toutes informations, veuillez nous contacter.

 


Les informations sur les risques auxquels ce bien est exposé sont disponibles sur le site Géorisques
Prix du bien 245 000 €

Caractéristiques du bien

Caractéristiques Valeurs
Type de transac Local commercial
Code postal 31400
Surface habitable (m²) 107,80 m²
Ascenseur 1
Vue LE CANAL DU MIDI
Superficie (m²) 107.8
Mode de chauffage Electrique, Gaz de ville
Type de chauffage Air pulsé, Radiateur
Format de chauffage Individuel, Collectif
Année de construction 1973

Infos financières

Caractéristiques Valeurs
Prix de vente honoraires inclus 245 000 €
Chiffre d'affaires
EBE

Bilans énergétiques

DPE GES
Ce bien vous intéresse ?
Fieldset par défaut
Fieldset par défaut
Validation

* Champs obligatoires

Contacter l'agence
Validation
Les informations recueillies sur ce formulaire sont enregistrées dans un fichier informatisé par La Boite Immo agissant comme Sous-traitant du traitement pour la gestion de la clientèle/prospects de l'Agence / du Réseau qui reste Responsable du Traitement de vos Données personnelles.
La base légale du traitement repose sur l’intérêt légitime de l'Agence / du Réseau.
Elles sont conservées jusqu'à demande de suppression et sont destinées à l'Agence / au Réseau.
Conformément à la loi « informatique et libertés », vous pouvez exercer votre droit d'accès aux données vous concernant et les faire rectifier en contactant l'Agence / le Réseau.
Si vous estimez, après avoir contacté l'Agence / le Réseau, que vos droits « Informatique et Libertés » ne sont pas respectés, vous pouvez adresser une réclamation à la CNIL.
Nous vous informons de l’existence de la liste d'opposition au démarchage téléphonique « Bloctel », sur laquelle vous pouvez vous inscrire ici : https://www.bloctel.gouv.fr 
Dans le cadre de la protection des Données personnelles, nous vous invitons à ne pas inscrire de Données sensibles dans le champ de saisie libre
Ce site est protégé par reCAPTCHA, les Politiques de Confidentialité et les Conditions d'Utilisation de Google s'appliquent.
Ces biens peuvent vous intéresser