0

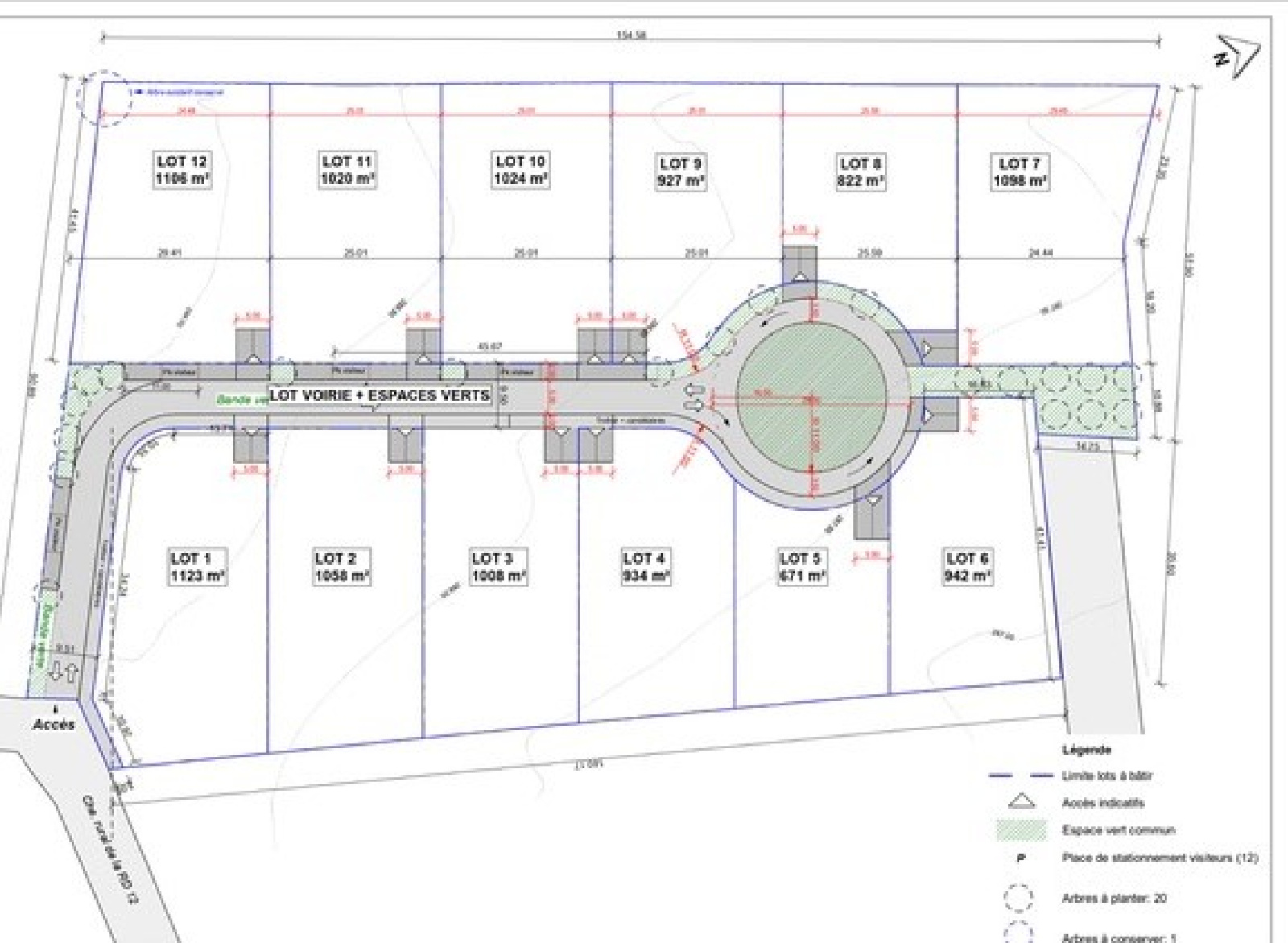
TERRAIN VIABILISE 927m²

Les Issards (09100)
Réf : TERRAIN09

Sur le bas de la commune - LES ISSARDS - Ce terrain viabilisé -EAU-TEL-ELEC- N'attend que vous pour réaliser votre projet.

La surface de plancher maximale autorisée est de 300m².

Pour toutes informations n'hésitez pas à nous contacter.

découvrir le bien
Prix du bien 61 000 €

Caractéristiques du bien

Caractéristiques Valeurs
Code postal 09100
surface terrain 927 m²
Terrain constructible OUI
Terrain Viabilisé OUI
Raccordement eau OUI
Raccordement électricité OUI
Raccordement téléphone OUI

Infos financières

Caractéristiques Valeurs
Prix de vente 61 000 €
Les honoraires d'agence seront intégralement à la charge du vendeur  
Ce bien vous intéresse ?
Fieldset par défaut
Fieldset par défaut
Validation

* Champs obligatoires

Contacter l'agence
Validation
Les informations recueillies sur ce formulaire sont enregistrées dans un fichier informatisé par La Boite Immo agissant comme Sous-traitant du traitement pour la gestion de la clientèle/prospects de l'Agence / du Réseau qui reste Responsable du Traitement de vos Données personnelles. La base légale du traitement repose sur l'intérêt légitime de l'Agence / du Réseau. Elles sont conservées jusqu'à demande de suppression et sont destinées à l'Agence / au Réseau. Conformément à la loi « informatique et libertés », vous disposez des droits d’accès, de rectification, d’effacement, d’opposition, de limitation et de portabilité de vos données. Vous pouvez retirer votre consentement à tout moment en contactant directement l’Agence / Le Réseau. Consultez le site https://cnil.fr/fr pour plus d’informations sur vos droits. Si vous estimez, après avoir contacté l'Agence / le Réseau, que vos droits « Informatique et Libertés » ne sont pas respectés, vous pouvez adresser une réclamation à la CNIL. Nous vous informons de l’existence de la liste d'opposition au démarchage téléphonique « Bloctel », sur laquelle vous pouvez vous inscrire ici : https://www.bloctel.gouv.fr Dans le cadre de la protection des Données personnelles, nous vous invitons à ne pas inscrire de Données sensibles dans le champ de saisie libre.
Ce site est protégé par reCAPTCHA, les Politiques de Confidentialité et les Conditions d'Utilisation de Google s'appliquent.